

Length: 30 feet
Width: Up to 120 inches (10 feet)
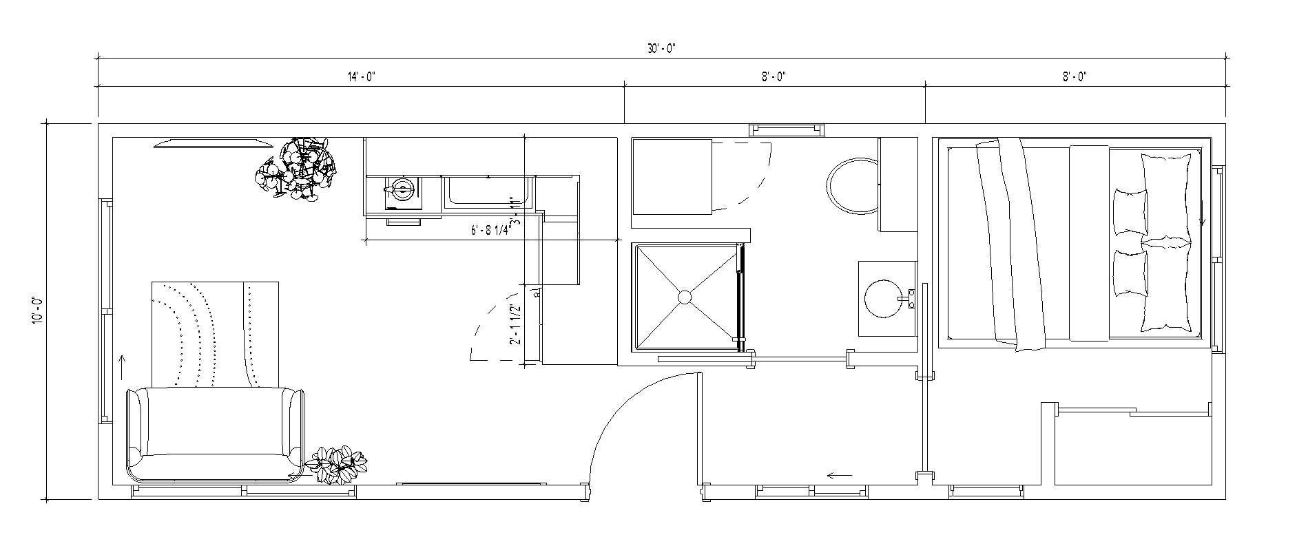
Layout: Main floor bedroom
Chassis: DOT-certified tiny home trailer
Certification: RVIA RV Park Model
Electrical: 50-amp service
Framing: 2" × 4" lumber with CDX plywood
Roof Rafters: 2" × 6" to 2" × 8" lumber
Roofing: TPO membrane with metal edge
Flooring: LVT waterproof over insulated subfloor
Entry Door: 36" × 80" full-lite with Kwikset lock
Windows: White vinyl with bedroom egress
Bedroom: Pocket door, egress window, two outlets
Kitchen Appliances: Refrigerator, 2-burner cooktop, stainless sink
Bathroom: Fiberglass shower, vanity sink, toilet
Heating: Electric water heater, in-wall heater
Lighting: All LED fixtures
Hookups: Washer/dryer ready
Cabinet Style: White shaker
Hardware Finish: Matte black or satin
Safety: Smoke detector, fire extinguisher






The 30' Echelon Park Model redefines compact living with its thoughtfully designed 10' × 30' layout featuring a private main floor bedroom. At $124,900, this RVIA-certified park model offers the perfect solution for RV resort developments, senior living communities, and investors seeking higher-end rental accommodations.
Unlike traditional tiny homes, the Echelon's park model certification and generous 120-inch width create a genuinely spacious interior while maintaining the flexibility of manufactured housing. The separate bedroom with pocket door provides privacy rarely found in compact homes, while the full-sized kitchen and bathroom deliver the amenities long-term residents expect.
Built on a DOT-certified chassis with commercial-grade materials including CDX plywood sheathing and TPO roofing, the Echelon stands ready for decades of use. The all-electric design, complete with 50-amp service, simplifies utility management for park operators while the turnkey package including appliances, washer/dryer connections, and customizable finishes ensures immediate rental readiness. Whether positioned in an RV resort, deployed as workforce housing, or offered as premium rental accommodations, the Echelon delivers the space, privacy, and quality that command higher rental rates.




