
Base Price: $149,900
Length: 40 feet
Width: Up to 120 inches (10 feet)
Layout: Two main floor bedrooms
Chassis: DOT-certified tiny home trailer
Certification: RVIA RV Park Model
Electrical: 50-amp service
Framing: 2" × 4" lumber with CDX plywood
Roof Rafters: 2" × 6" to 2" × 8" lumber
Roofing: TPO membrane with metal edge
Flooring: LVT waterproof over insulated subfloor
Entry Door: 36" × 80" full-lite with Kwikset lock
Windows: White vinyl with egress in both bedrooms
Bedrooms: Two with pocket doors, egress windows, outlets
Kitchen Appliances: Refrigerator, 2-burner cooktop, stainless sink
Bathroom: Fiberglass shower, vanity sink, toilet
Heating: Electric water heater, in-wall heater
Lighting: All LED fixtures
Hookups: Washer/dryer ready
Cabinet Style: White shaker
Hardware Finish: Matte black or satin
Safety: Smoke detector, fire extinguisher
Square Footage: Approximately 400 square feet





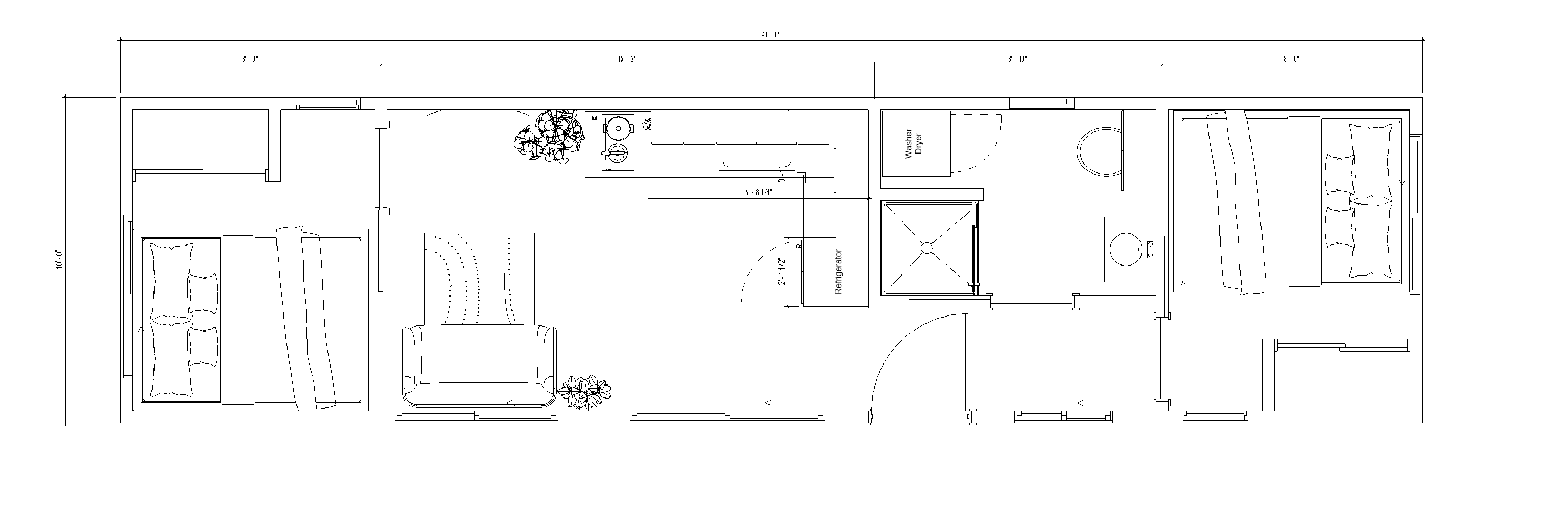
The 40' Halo Park Model elevates compact living with an exceptional 10' × 40' layout featuring two private main floor bedrooms. Priced at $149,900, this RVIA-certified park model delivers the space and privacy families need while maintaining the flexibility and efficiency property investors demand.
The Halo's two-bedroom configuration opens profitable opportunities rarely available in the tiny home market. Target workforce housing for traveling professionals, accommodate families in RV resorts, or command premium rates from snowbirds seeking seasonal comfort. Each bedroom features its own pocket door for privacy, egress window for safety, and dedicated outlets for complete functionality.
Built on a DOT-certified chassis, the Halo combines mobility with durability through commercial-grade construction including CDX plywood sheathing and weather-resistant TPO roofing. The generous 400 square feet accommodates a full kitchen, complete bathroom, and comfortable living space without sacrificing the economic advantages of manufactured housing. With 50-amp all-electric service, turnkey appliances, and washer/dryer connections included, each unit arrives ready to generate immediate rental income. The Halo transforms the typical park model into genuine family-friendly housing that commands top-tier rental rates.




