
Base Price: $99,900
Length: 26 feet
Width: Up to 102 inches
Layout: Sleeping loft with storage stairs
Chassis: DOT-certified tiny home trailer
Certification: RVIA RV Travel Trailer
Electrical: 50-amp service
Framing: 2" × 4" lumber with CDX plywood
Roof Rafters: 2" × 6" to 2" × 8" lumber
Roofing: TPO membrane with metal edge
Flooring: LVT waterproof over insulated subfloor
Entry Door: 36" × 80" full-lite with Kwikset lock
Windows: White vinyl with loft egress
Loft: Storage stairs with handrail, safety rail, egress window
Kitchen Appliances: Refrigerator, 2-burner cooktop, stainless sink
Bathroom: Fiberglass shower, vanity sink, toilet
Heating: Electric water heater, in-wall heater
Lighting: All LED fixtures
Hookups: Washer/dryer ready
Cabinet Style: White shaker
Hardware Finish: Matte black or satin
Safety: Smoke detector, fire extinguisher






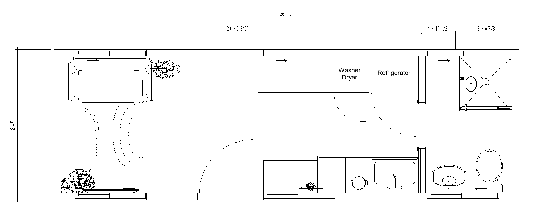
The 26' Heritage Tiny Home delivers the quintessential tiny living experience with its efficient loft bedroom design and thoughtful storage solutions. At $99,900, this RVIA-certified travel trailer strikes the perfect balance between spacious living and mobile flexibility, making it ideal for rental operators and lifestyle adventurers alike.
The Heritage's standout feature is its storage staircase leading to the sleeping loft, maximizing every cubic foot while providing safe access to the bedroom area. The loft includes an egress window and safety rail, creating a cozy retreat that doesn't sacrifice the open feeling of the main living space below. This vertical design provides approximately 220 square feet on the main floor plus additional loft space, rivaling much larger traditional homes in functionality.
Built on a DOT-certified trailer chassis with commercial-grade materials, the Heritage combines true mobility with long-term durability. The complete kitchen, full bathroom with shower, and washer/dryer connections ensure comfortable full-time living or premium short-term rental experiences. With RVIA Travel Trailer certification enabling placement in RV parks, campgrounds, and private property, the Heritage offers investors multiple revenue streams while providing individuals the freedom to live anywhere their adventures lead.




